Skip To Content

1906 La Tijera Court , #28

Oceano, CA 93445
  • $525,000
  • STATUS: Closed
  • ON SITE: 353 Days
  • ID#: PI25026019
Sold - 07/03/2025
$525,000
SOLD - 07/03/2025
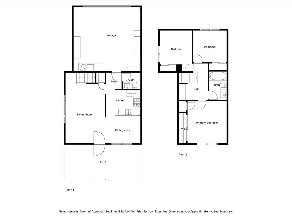
  • 3
    BEDS
  • 0.03
    ACRES
  • 1
    BATHS
  • 1
    1/2 BATHS
  • 1,161
    SQFT
  • $0
    $/SQFT
Neighborhood:
Type:
Condo
Built:
1984
County:

School Information

Elementary School:
Middle School:
High School:
School District:
Listing Agent(s): James Outland of Outland and Associates Real Estate (805-481-3939) and Jo Ann Outland of ()


Description

Dont miss this one! This end unit features a private gated front courtyard. Move-in ready with fresh interior paint, new vinyl plank flooring, and an updated kitchen with brand-new cabinets, granite countertops, sink, faucet, and garbage disposal. Upgraded dcor outlets and switches add a modern touch. The home also includes a new range, microwave, and dishwasher.The bathrooms have been updated with new cabinets, granite countertops, sinks, and faucets. The upstairs bathroom features a newly tiled tub surround, a brand-new tub, and accent trim. Additionally, a new water heater has been installed in the spacious two-car garage, along with new garage door electronics and remotes.All of this, plus a great location near the beach! Virtual Staging in some in some images

Sold by April Dean of BHGRE HAVEN PROPERTIES.

Monthly Payment Calculator



Based on information from California Regional Multiple Listing Service, Inc. as of 2026-01-24T00:26:00.087. This information is for your personal, non-commercial use and may not be used for any purpose other than to identify prospective properties you may be interested in purchasing. Display of MLS data is deemed reliable but is not guaranteed accurate by the MLS or Equity Union. Licensed in the State of California, USA.
www.kennyrealestategroup.com/homes/160034433
Print Image

1906 La Tijera Court , #28 Oceano, CA 93445

  • Price: $539,900
  • Status: Closed
  • On Site: 353 Days
  • Updated: 180 min ago
  • ID#: PI25026019
3
Beds
1
Baths
1
½ Baths
0.03
Acres
1,161
SQFT
$0
$/SQFT
1984
Built
Neighborhood:
Oceano(350)
County:
San Luis Obispo
Area:
OCNO - Oceano
Elementary School:
Oceano
Middle School:
Paulding
High School:
Arroyo Grande
School District:
Lucia Mar Unified
Property Description
Dont miss this one! This end unit features a private gated front courtyard. Move-in ready with fresh interior paint, new vinyl plank flooring, and an updated kitchen with brand-new cabinets, granite countertops, sink, faucet, and garbage disposal. Upgraded dcor outlets and switches add a modern touch. The home also includes a new range, microwave, and dishwasher.The bathrooms have been updated with new cabinets, granite countertops, sinks, and faucets. The upstairs bathroom features a newly tiled tub surround, a brand-new tub, and accent trim. Additionally, a new water heater has been installed in the spacious two-car garage, along with new garage door electronics and remotes.All of this, plus a great location near the beach! Virtual Staging in some in some images
Exterior Features

Architectural Style Traditional Attached Garage YN 1 Carport Spaces 0 Construction Materials Stucco Entry Level 1 Entry Location 1 Foundation Details Slab Lot Features Sloped Down Parking Features On Street Parking Total 2 Pool Features None Pool Private YN No Property Attached YN Yes Road Frontage Type City Street Road Surface Type Paved Roof Composition Sign On Property YN Yes Spa Features None Spa YN No View None View YN No

Interior Features

Appliances DishwasherDisposalGas RangeMicrowave Common Walls 1 Common Wall Cooling None Cooling YN No Fireplace Features None Fireplace YN No Flooring Vinyl Heating Forced Air Heating YN Yes Interior Features Breakfast BarGranite CountersAll Bedrooms Up Main Level Bathrooms 1 Main Level Bedrooms 3

Property Features

Additional Parcels YN No Association Amenities Maintenance GroundsWater Association Fee 390 Association Fee Frequency Monthly Association YN Yes Buyer Financing Conventional Common Interest Condominium Community Features Suburban Contingency Call listing agents prior to showing James at 805-748-2262 or Jo Ann at 805-441-5574 Garage YN Yes Land Lease YN No Laundry Features In Garage Lease Considered YN No Levels Two Listing Agreement Exclusive Right To Sell Listing Service Full Service Listing Terms CashCash to New LoanConventional New Construction YN No Number Of Units In Community 70 Possession Close Of Escrow Property Condition Updated/Remodeled Property Sub Type Condominium Senior Community YN No Sewer Public Sewer Special Listing Conditions Real Estate Owned Structure Type House Utilities Electricity ConnectedNatural Gas ConnectedSewer ConnectedWater Connected Water Source Public Zoning RMF



Based on information from California Regional Multiple Listing Service, Inc. as of 2026-01-24T00:26:00.087. This information is for your personal, non-commercial use and may not be used for any purpose other than to identify prospective properties you may be interested in purchasing. Display of MLS data is deemed reliable but is not guaranteed accurate by the MLS or Equity Union. Licensed in the State of California, USA.
 
https://bt-photos.global.ssl.fastly.net/socal/orig_boomver_2_373895819-2.jpg https://bt-photos.global.ssl.fastly.net/socal/orig_boomver_2_373895819-2.jpg https://bt-photos.global.ssl.fastly.net/socal/orig_boomver_2_373895819-2.jpg
Logo
Equity Union
860 Walnut St. Ste C
San Luis Obispo CA, 93401
Listing Agent(s): James Outland of Outland and Associates Real Estate (805-481-3939) and Jo Ann Outland of ()